Страна зелёных витаминов

Проект реализуется при поддержке ОАО «Россельхозбанк» Главная
Сегодня: 30 апреля 2026 года
Авторизация
 Регистрация
Имя
Пароль
Число пользователей: 1398
ТУРИСТАМ
Блог Сергея Конина Наш интернет-магазин
11.01.2017Фермерский рынок как объект социального предпринимательства
Фермерский рынок как объект социального предпринимательства
Фермерский рынок как объект социального предпринимательства
Фермерский рынок как объект социального предпринимательства
Фермерский рынок как объект социального предпринимательства
Фермерский рынок как объект социального предпринимательства
Решение принято. Фермерский рынок в городе Коврове Владимирской области будет построен на условиях народного финансирования (краудинвестинга). Фермерский рынок - это объект социального предпринимательства, для которого главным критерием успеха является социальная отдача. Ввод в эксплуатацию планируется в ноябре 2017 года. Инвестором может быть любое физическое лицо или индивидуальный предприниматель независимо от места жительства. Шаг инвестиций равен одному квадратному метру и составляет 60 000 рублей. Инвесторы заключают инвестиционный контракт и после ввода объекта в эксплуатацию становятся компаньонами, получают свидетельство на право собственности доли в Фермерском рынке, соответствующей объему своих инвестиций. Предполагаемый инвестиционный доход: 24 % – 30 % годовых.
    В России рынки – наиболее популярный торговый формат. По инвестиционной доходности рынки превосходят все торговые форматы, любую коммерческую недвижимость. Фермерский рынок задуман, как связующее звено между экофермерами и горожанами – покупателями. При проектировании Фермерского рынка для города Коврова Владимирской области изучался опыт работы сельскохозяйственных рынков не только в России, но и за рубежом. В проекте реализованы лучшие решения по продвижению свежих и натуральных продуктов от поля до покупателя. Например, покупатели смогут оставить заказ на продовольственную фермерскую корзину. Рынок будет работать и в онлайн-режиме, как интернет-магазин. Проект сразу создавался в качестве типового, чтобы предлагать его для строительства в различных регионах России.
    Фермерский рынок - это наш вклад в "зелёную" экономику России в 2017 году, который Президентом РФ В.В.Путиным объявлен годом экологии. Во-первых, строительство будет вестись с применением энергоэффективных технологий, чтобы в период эксплуатации существенно экономить энергоресурсы. Во-вторых, задача Фермерского рынка - стимулировать переход сельхозтоваропроизводителей на экологическое земледелие и выращивание экопродуктов. В-третьих, появление Фермерского рынка по нашим подсчетам, создаст не менее 500 "зелёных" рабочих мест.
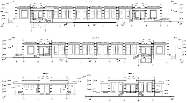
    Если строится один корпус, то его можно использовать как мини-рынок шаговой доступности для любого спального района. А можно реализовать целый рыночный кластер или комплекс, состоящий из 3-4 и более корпусов со специализацией продаж. Ковровский рынок планируется построить в торговом кластере «Первомайский рынок», который будет состоять из 3 специализированных корпусов (овощи-фрукты, молоко и молочные продукты, мясо-рыба, товары для фермеров, садоводов и огородников и т.д.).
    Фермеры поставляют свежие продукты на рынок согласно распределяемым квотам и обеспечивают неснижаемый ассортимент. Все товары на рынке будут брендовыми или авторскими, чтобы покупатель имел полную информацию о происхождении продукта. Поставщики - экофермеры будут выращивать продукцию принципах пермакультуры и экологического земледелия, в качестве удобрений использовать только сидераты и биогумус. Рынок будет работать в формате самообслуживания, чтобы освободить фермеров от необходимости стоять за прилавком. Расчет с фермерам за реализованную продукцию будет осуществляться еженедельно (в торговых сетях от 45 до 90 дней). Уже 12 фермеров Владимирской области изъявили желание поставлять свои товары на рынок.
    Прибрести площади Фермерского рынка вы можете на Сайте прямых инвестиций Потребительского общества «Экополис». Если вы занимаете активную позицию, то можете стать участником партнерской программы и получать 5 % с каждого инвестиционного контракта, заключенного по вашей ссылке или приглашению.

Комментарии (0)

    Оставлять комменатрии могут толкьо зарегистрированные пользователи!
ЗАЯВКА

на бизнес формат экоферма "Грин-ПИКъ"