Страна зелёных витаминов

Проект реализуется при поддержке ОАО «Россельхозбанк» Главная
Сегодня: 2 декабря 2025 года
Авторизация
 Регистрация
Имя
Пароль
Число пользователей: 1398
ТУРИСТАМ
Блог Сергея Конина Наш интернет-магазин

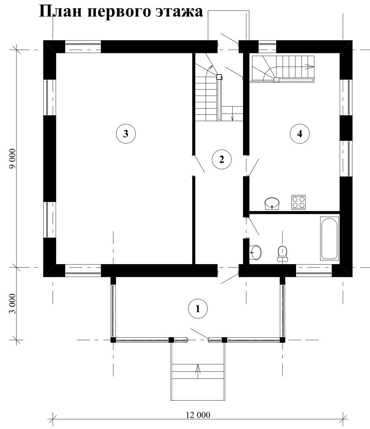
Проект ЭБ-227-2Ш

Проект     ЭБ-227-2Ш

 

  Фундаменты - монолитные железобетонные.
  Наружные  и внутренние стены - из экоблоков
толщиной 300мм.
  Перегородки - из экоблоков  толщиной 120мм.
  Чердачное перекрытие  по деревянным балкам,
утепленное.
  Кровля - из металлочерепицы по обрешетке и
стропилам.
  Оконные блоки  - из ПВХ профилей.
  Двери  наружные - из ПВХ профилей.
  Двери внутренние - деревянные.
  Наружная отделка - облицовка, штакатурка,
покрытие фасадными красками.
 
 
ОАО "Ковровмашпроект"
601901, Ковров, Владимирская обл., ул. Пугачёва, 34;
тел./факс (49232) 3-24-61 (секретарь-диспетчер); 3-24-63, 3-24-86 (директор)
e-mail: kmp34@yandex.ru, net.69@mail.ru

наверх

ЗАЯВКА

на бизнес формат экоферма "Грин-ПИКъ"